Land subdivision project in Avondale, Auckland
Located at Rose Bank Rd in Avondale, Auckland, this comprehensive land subdivision project showcases our expertise in chartered civil engineering. The project involved transforming a single residential lot into five separate properties, requiring detailed surveying, infrastructure development, and careful compliance with council regulations.
This project presented significant engineering challenges due to the scale of subdivision from one lot into five separate properties. Our team implemented innovative engineering solutions to address stormwater management, utilities distribution, and access requirements for all five lots while ensuring compliance with Auckland Council regulations.
The subdivision process involved comprehensive site investigation, detailed engineering design, and efficient project management throughout the consent process. Our chartered engineering expertise ensured all technical aspects were addressed with precision, including:



Comprehensive evaluation of the site's topography, soil conditions, and existing infrastructure to determine optimal subdivision design for five separate lots while identifying potential challenges.
Advanced engineering design of lot boundaries, access points, and utility connections to ensure all five properties meet council requirements while maximizing land utilization.
Meticulous preparation and management of complex resource consent applications, ensuring all technical documentation met Auckland Council requirements for efficient approval of a five-lot subdivision.
Implementation of extensive infrastructure modifications, including comprehensive stormwater management systems, utility connections, and access solutions for all five properties.
Effective coordination between property owners, council authorities, surveyors, and contractors to ensure smooth project progression and successful outcomes for this complex subdivision.
Rigorous quality control throughout this major subdivision project, ensuring all engineering aspects met the highest standards and complied with regulatory requirements for a 1-to-5 lot development.
"Charter Engineering's management of our Rose Bank Rd subdivision was exceptional. The complexity of converting one lot into five separate properties required significant engineering expertise, which they delivered with professionalism and precision. Their innovative solutions to our specific site challenges resulted in an optimal development outcome."
Rose Bank Rd, Avondale
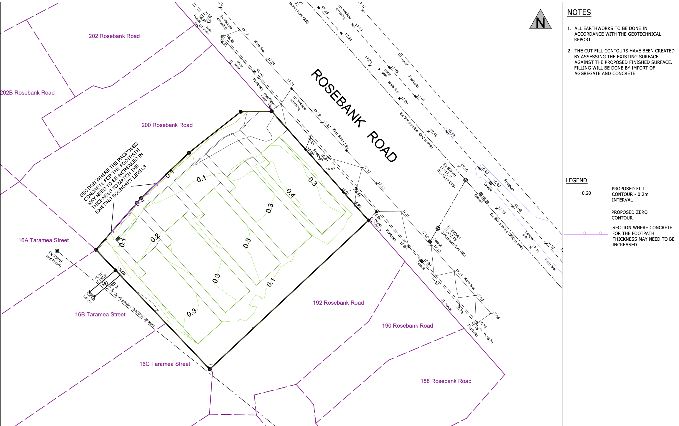
The engineering plans above illustrate the Rose Bank Rd subdivision project in Avondale, Auckland. These technical drawings demonstrate our comprehensive approach to transforming a single residential lot into five separate properties. The plans show the detailed layout configurations, infrastructure design, and utility service arrangements that were essential for this complex subdivision. Our engineering solutions addressed challenges of space optimization, access requirements, and compliance with Auckland Council regulations for multi-lot developments.