Land subdivision project in Halfmoon Bay, Auckland
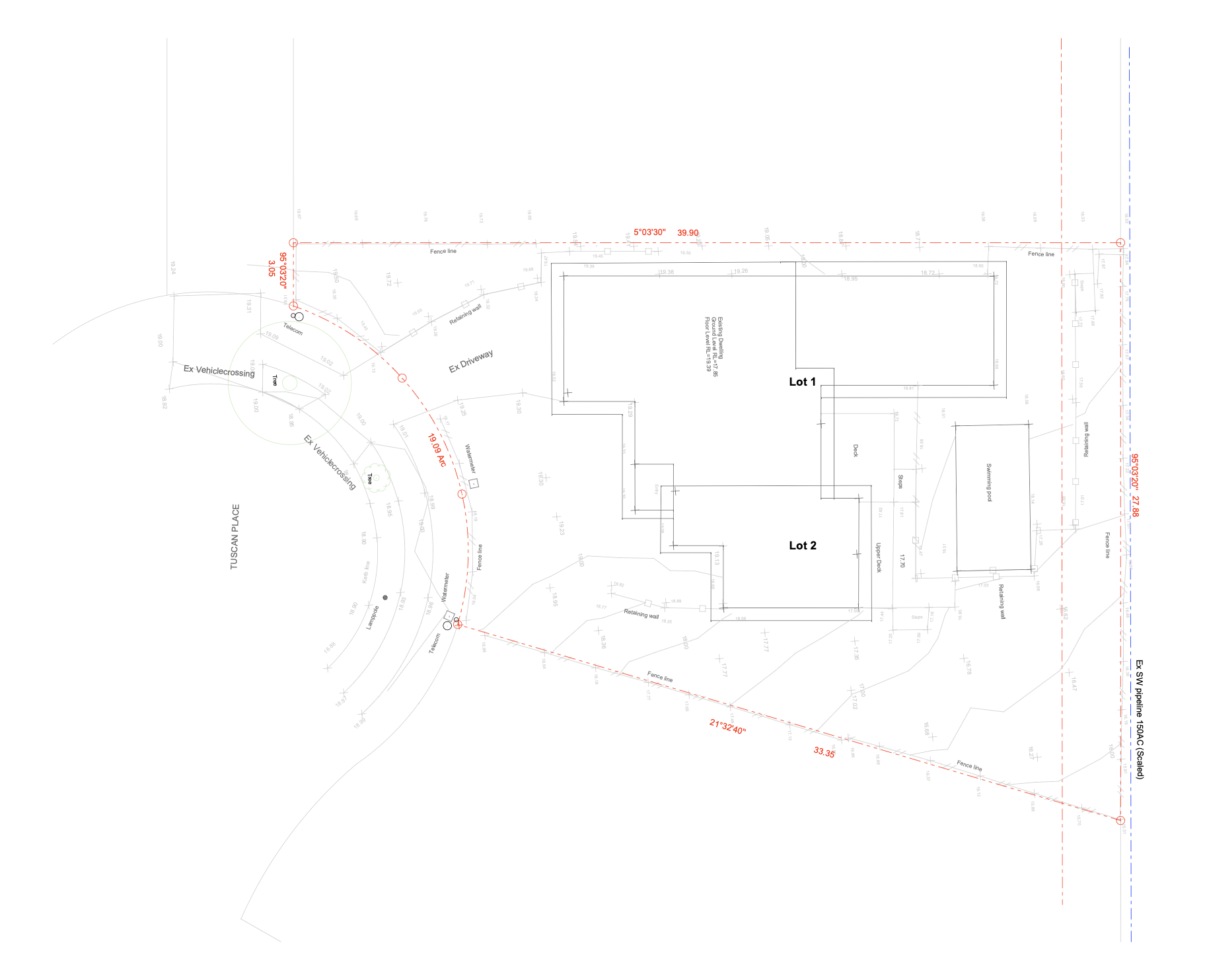
Located at Compass Way in Halfmoon Bay, Auckland, this precision land subdivision project showcases our expertise in chartered civil engineering. The project involved transforming a single residential lot into two separate properties, requiring detailed surveying, infrastructure modifications, and careful compliance with council regulations.
This project required careful consideration of the coastal environment in Halfmoon Bay, with particular attention to stormwater management and erosion control. Our team implemented specialized engineering solutions to address these challenges while ensuring each property met all council requirements for independent residential lots.
The subdivision process involved comprehensive site investigation, detailed engineering design, and efficient project management throughout the consent process. Our chartered engineering expertise ensured all technical aspects were addressed with precision, including:



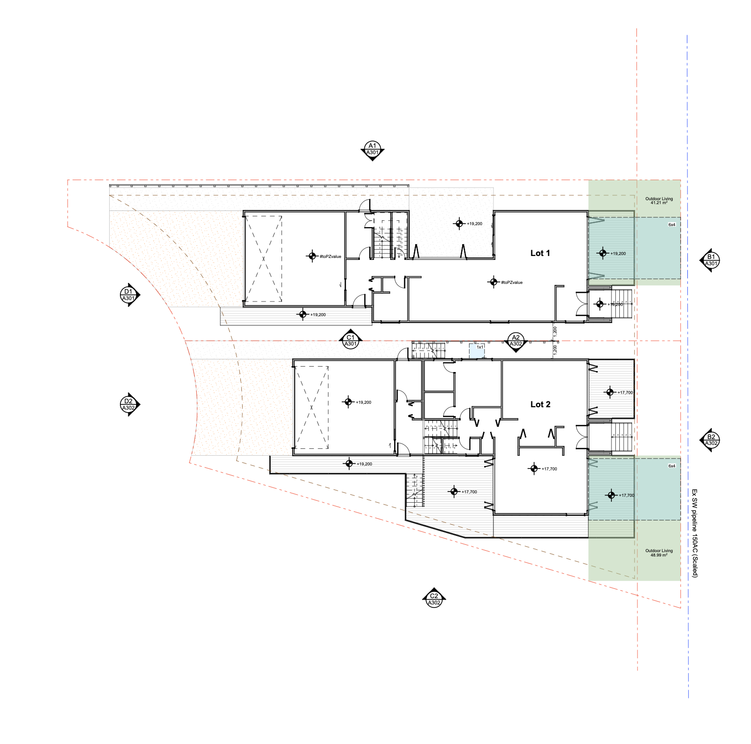
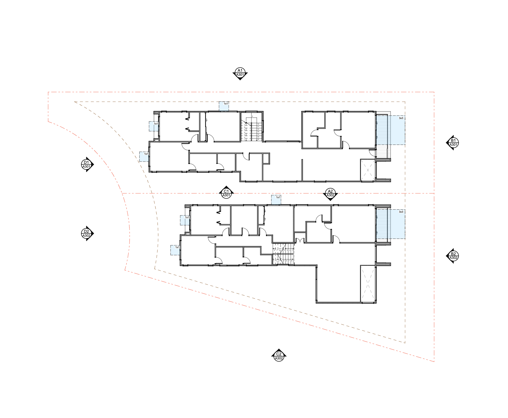
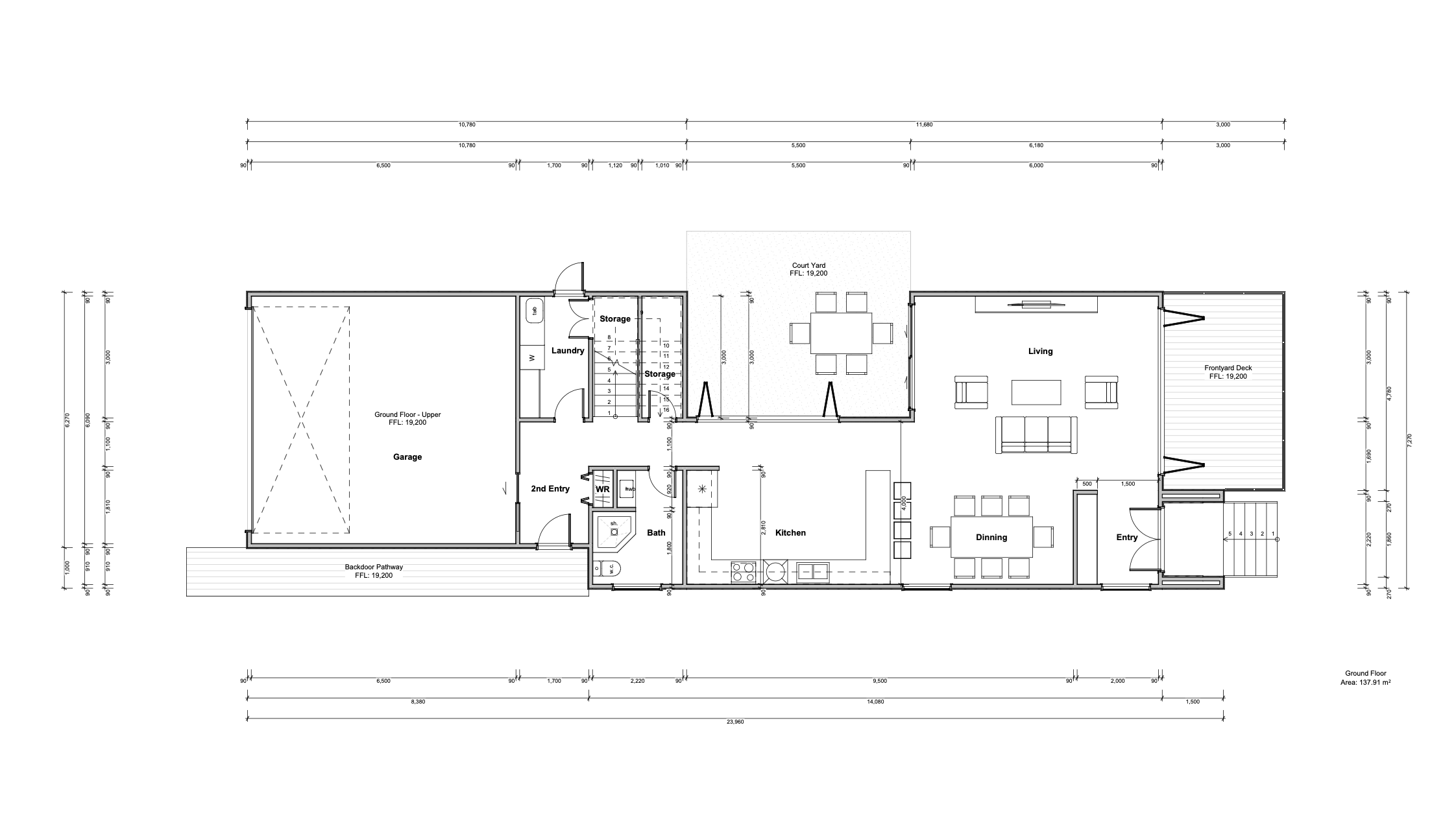
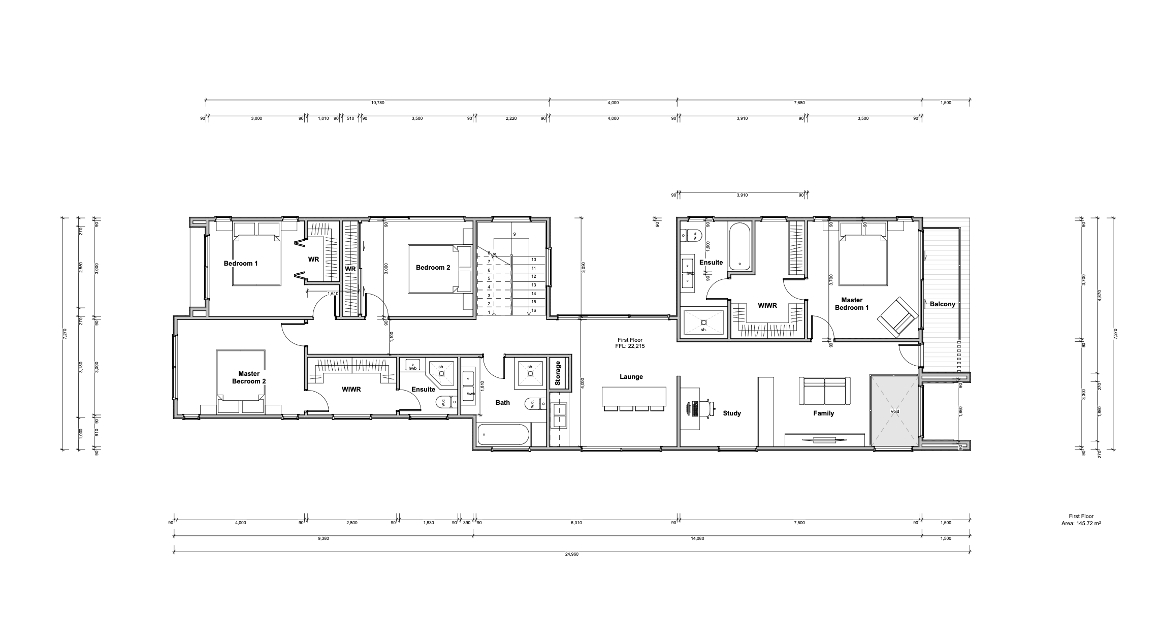
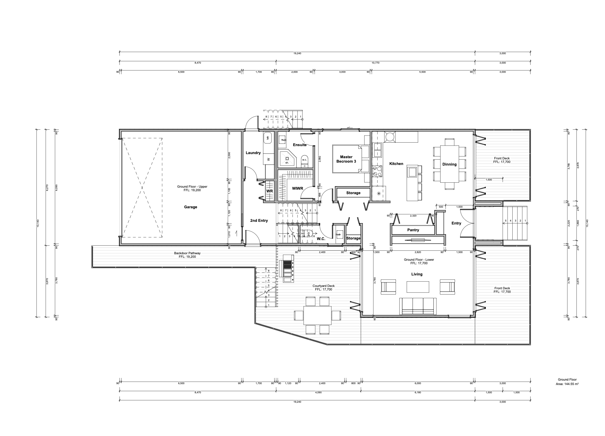
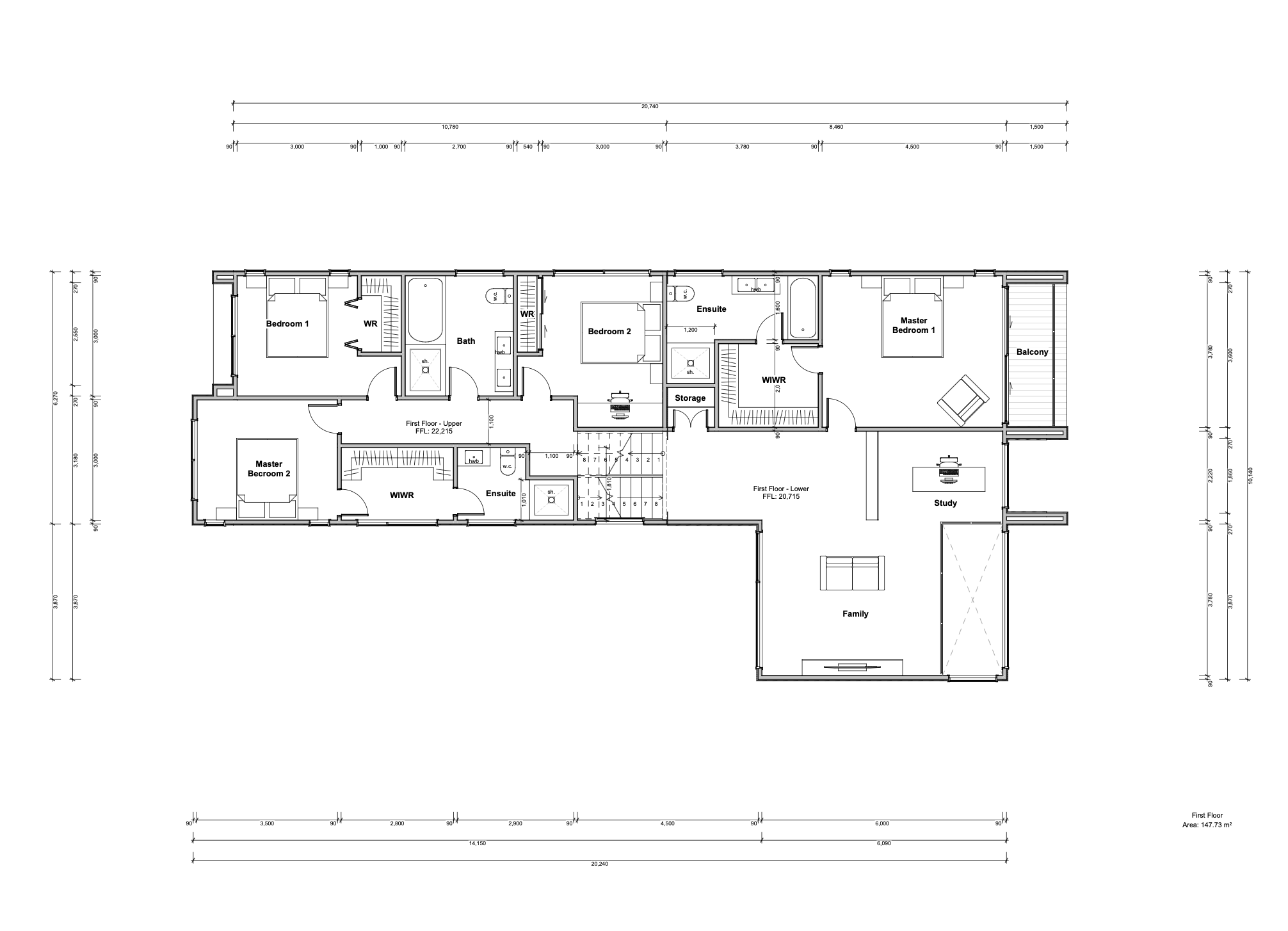
These 3D renderings illustrate the Compass Way development project upon completion, showing how the engineering design translates into real-world implementation with optimized lot configurations, infrastructure integration, and coastal environmental considerations.











Comprehensive evaluation of the coastal site's topography, soil conditions, and existing infrastructure to determine optimal subdivision design and identify potential challenges.
Expert engineering design of lot boundaries, access points, and utility connections to ensure both properties meet council requirements while maximizing land utilization in the coastal setting.
Meticulous preparation and management of resource consent applications, ensuring all technical documentation met Auckland Council requirements for coastal development approval.
Implementation of necessary infrastructure modifications, including specialized stormwater management systems, utility connections, and access solutions for both coastal properties.
Effective coordination between property owners, coastal authorities, surveyors, and contractors to ensure smooth project progression and successful outcomes.
Rigorous quality control throughout the project, ensuring all engineering aspects met the highest standards and complied with coastal development regulatory requirements.
"The Charter Engineering team delivered exceptional results for our Compass Way subdivision. Their understanding of coastal engineering requirements and innovative approach to stormwater management has resulted in two beautifully developed lots that perfectly complement the Halfmoon Bay environment."
Compass Way, Halfmoon Bay
The engineering plans and 3D renderings above illustrate the Compass Way subdivision project in Halfmoon Bay, Auckland. These technical visualizations show our comprehensive approach to transforming a single residential lot into two separate properties in a coastal setting. The detailed engineering plans address specialized coastal considerations, environmental protection measures, and infrastructure requirements, while the 3D renderings provide a realistic visualization of how the completed development will integrate with the surrounding coastal landscape.